
1208 Crumpton Dr, Pflugerville, TX 78660
Schedule a Tour
Available 7 days a week
About this Home
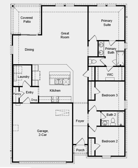
What's Special: Single Level Living | Covered Patio | Large Kitchen Island | No Stairs. New Construction – August Completion! Built by Taylor Morrison, America's Most Trusted Home Builder. Welcome to the Bluejay at 1208 Crumpton Drive in Lisso! This charming one-story home welcomes you with a bright foyer that leads to two comfortable bedrooms and a full bathroom, set across from the laundry room and two-car garage. Further in...
Listing data provided directly by MLS Grid. Information deemed reliable but not guaranteed.
Updated Mar 24, 2026Assigned Schools
Similar homes in Pflugerville
View all
$372,500
1813 Meandering Meadows Dr, Pflugerville, 78660

$372,500
17906 Nashville Warbler Rd, Pflugerville, 78660

$372,000
17911 Prairie Falcon Way #7, Pflugerville, 78660

$372,000
17806 Nashville Warbler Rd, Pflugerville, 78660
Data Source & Disclaimer
Property data is sourced from Unlock MLS (ACTRIS) and is updated periodically. While we strive to provide accurate and up-to-date information, details may be incomplete, outdated, or subject to change without notice.
Information is provided for personal, non-commercial use only and may not reflect all real estate activity in the market. Certain listings may be excluded in accordance with MLS rules. Buyers are encouraged to independently verify all information.
Explore Every Corner of Austin
Search by city, neighborhood, ZIP code, or school district — with real-time data across the entire market.
Communities
ZIP Codes
School Districts
Can't find what you're looking for?
Tell us what you want and we'll match you with the right property across Central Texas.



