ReadyFront
Real Estate
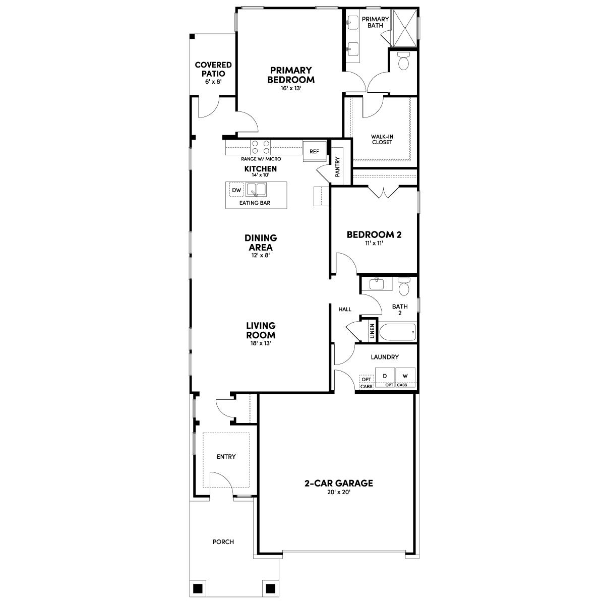
128 Desert Zinnia Cv | ReadyFront Real Estate | Ready Front Real Estate