
3109 Frijolita St, Austin, TX 78730
Schedule a Tour
Available 7 days a week
About this Home
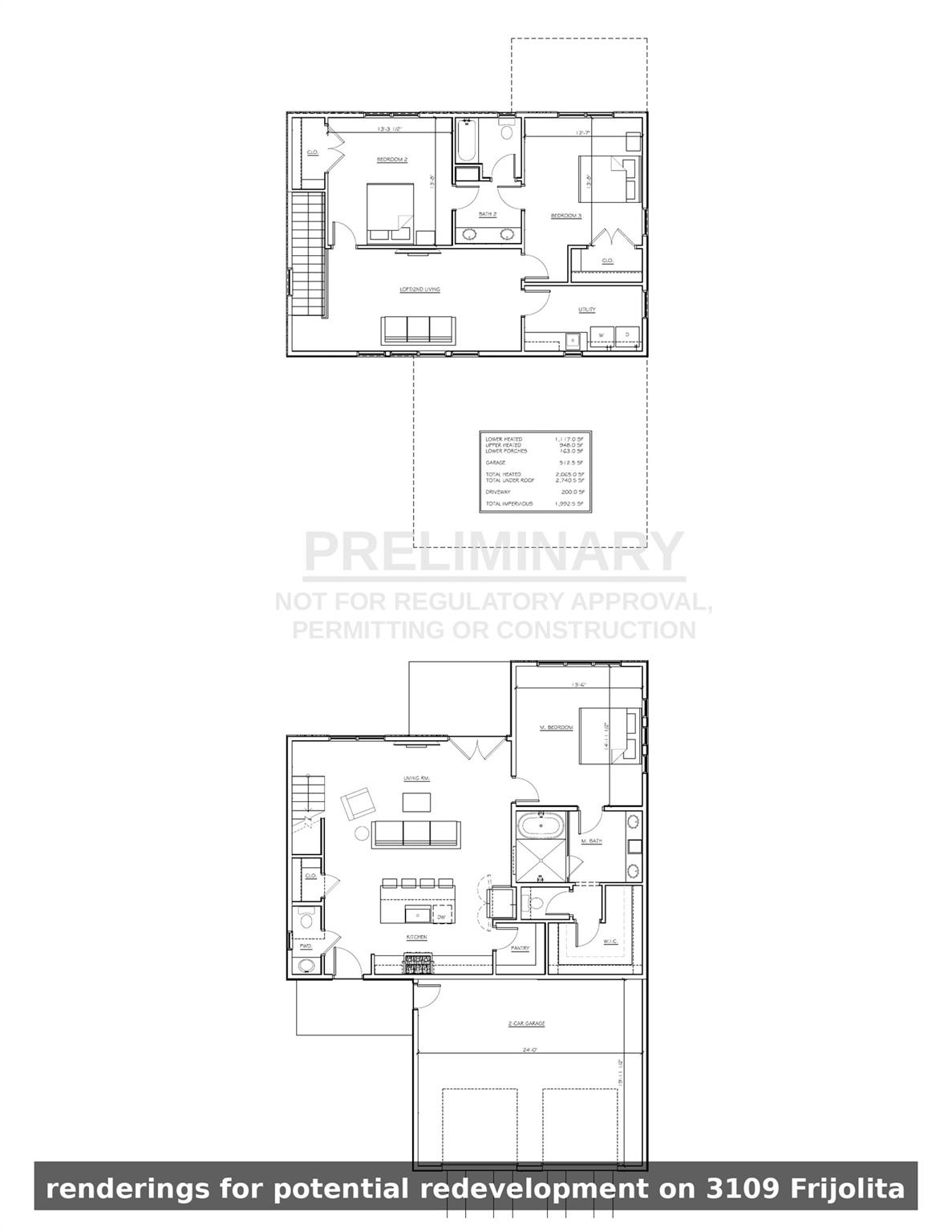
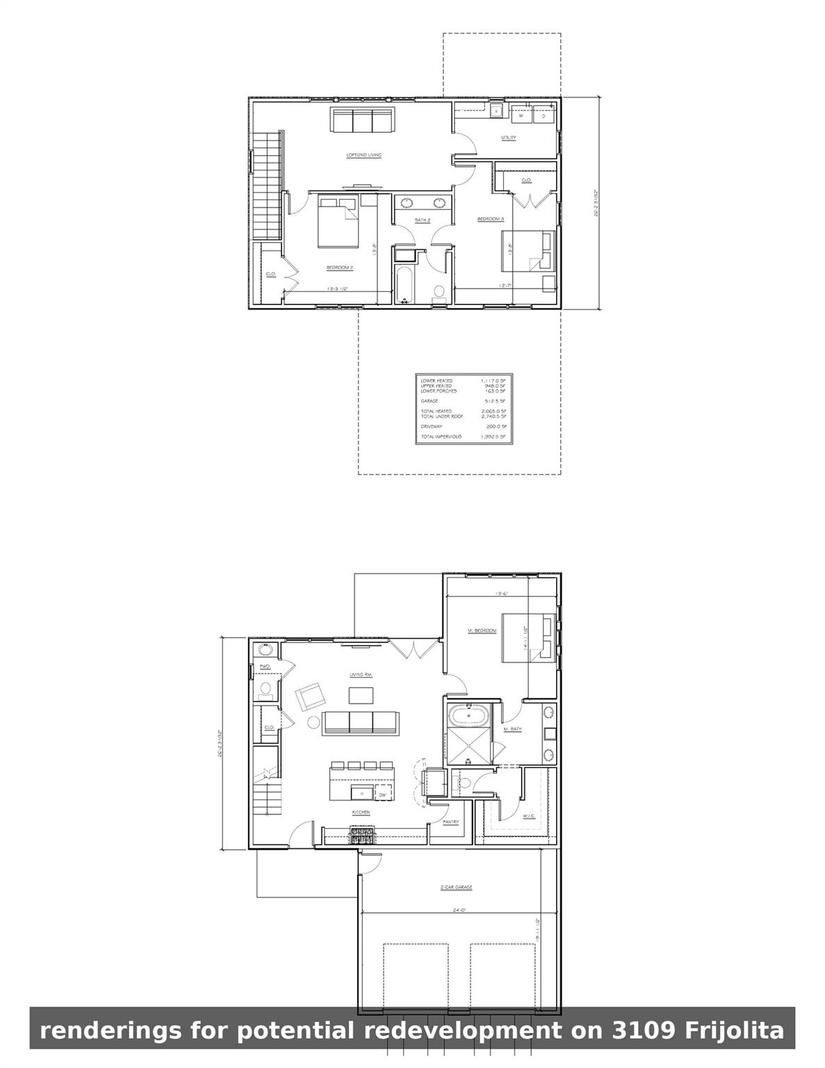
3109 Frijolita is more than just a piece of land, it’s a private retreat offering beautiful Lake Austin views and unforgettable sunrises. What sets this lot apart is its readiness. Construction plans and a full feasibility survey are already complete and available upon request, allowing you to skip the uncertainty and move straight into building. With deeded water access and a boat ramp less than two minutes away, this propert...
Listing data provided directly by MLS Grid. Information deemed reliable but not guaranteed.
Updated Mar 4, 2026Assigned Schools
Similar homes in Austin
View allData Source & Disclaimer
Property data is sourced from Unlock MLS (ACTRIS) and is updated periodically. While we strive to provide accurate and up-to-date information, details may be incomplete, outdated, or subject to change without notice.
Information is provided for personal, non-commercial use only and may not reflect all real estate activity in the market. Certain listings may be excluded in accordance with MLS rules. Buyers are encouraged to independently verify all information.
Explore Every Corner of Austin
Search by city, neighborhood, ZIP code, or school district — with real-time data across the entire market.
Communities
ZIP Codes
School Districts
Can't find what you're looking for?
Tell us what you want and we'll match you with the right property across Central Texas.






