
1020 S Guadalupe St, Lockhart, TX 78644
Schedule a Tour
Available 7 days a week
About this Home
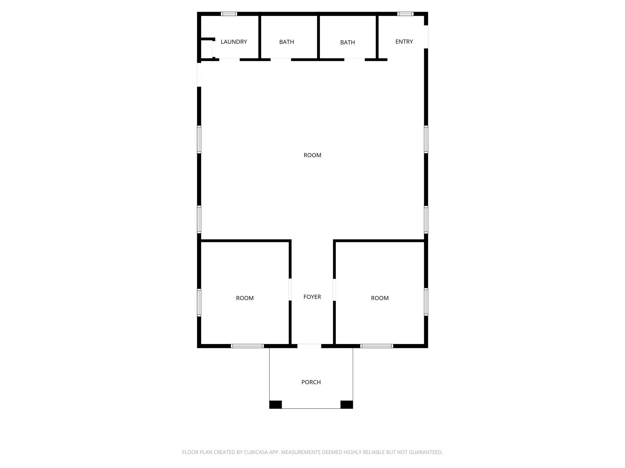
Well-established commercial property featuring a 1,433 sq ft building with a functional and adaptable layout that includes two private offices, two restrooms, and a large open central area, along with nine dedicated on-site parking spaces and a secure fenced yard, all on a 0.23-acre lot, making it an attractive option. The property is set within walkable residential neighborhoods, close to popular quick-service restaurants and...
Listing data provided directly by MLS Grid. Information deemed reliable but not guaranteed.
Updated Feb 17, 2026Assigned Schools
Property Details
Interior
Interior Details
- Flooring
- Vinyl
- Fireplace
- No
Rooms
- Bathrooms
- 0
- Living Area (SqFt)
- 1433
Property
Structure
- Property Type
- Commercial Sale
- Sub Type
- Mixed Use
- Year Built
- 2007
Parking
- Has Garage
- Yes
- Garage Spaces
- 9
- Parking Features
- On Site
Exterior
Exterior Features
- Construction
- Brick Veneer
- Pool
- No
Utilities
- Heating
- Central
- Cooling
- Central Air
- Water Source
- Public
- Sewer
- Public Sewer
Schedule a Tour
Available 7 days a week
Similar homes in Lockhart
View allData Source & Disclaimer
Property data is sourced from Unlock MLS (ACTRIS) and is updated periodically. While we strive to provide accurate and up-to-date information, details may be incomplete, outdated, or subject to change without notice.
Information is provided for personal, non-commercial use only and may not reflect all real estate activity in the market. Certain listings may be excluded in accordance with MLS rules. Buyers are encouraged to independently verify all information.
Explore Every Corner of Austin
Search by city, neighborhood, ZIP code, or school district — with real-time data across the entire market.
Communities
ZIP Codes
School Districts
Can't find what you're looking for?
Tell us what you want and we'll match you with the right property across Central Texas.






