
105 Arcilla Pass, Liberty Hill, TX 78642
Schedule a Tour
Available 7 days a week
About this Home
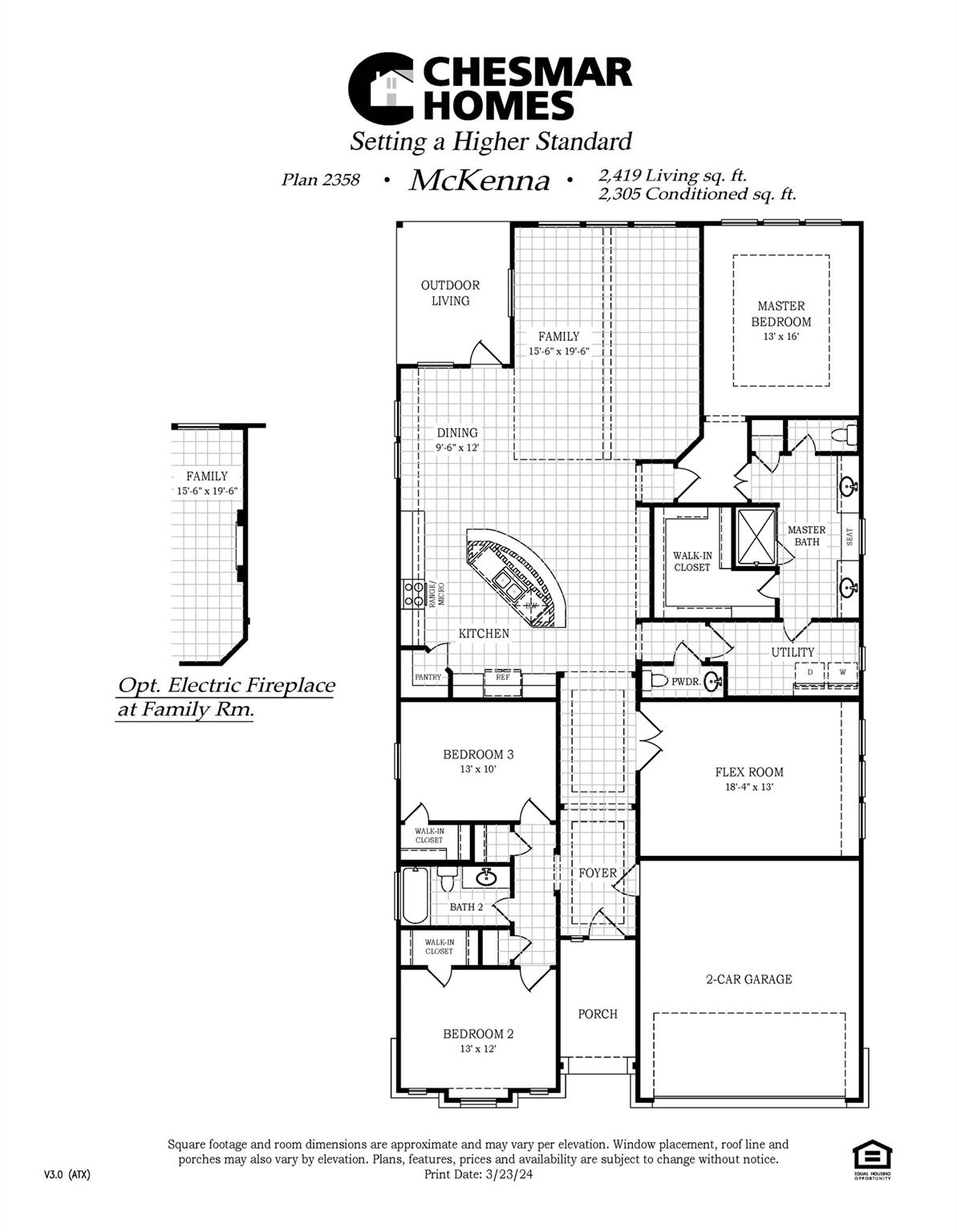
New Construction | 3 Beds | 2.5 Baths | Flex Room | 1-Story | 2,305 Sq Ft | 2-Car Garage | Covered Outdoor Living | Ready Spring 2026 | The McKenna is designed for families who love an open, airy home with thoughtful touches in all the right places. A long entrance foyer leads to two front bedrooms—each with a walk-in closet and their own extra storage closet outside the door—connected by a shared full bath. The heart of the h...
Listing data provided directly by MLS Grid. Information deemed reliable but not guaranteed.
Updated Feb 17, 2026Assigned Schools
Similar homes in Liberty Hill
View allData Source & Disclaimer
Property data is sourced from Unlock MLS (ACTRIS) and is updated periodically. While we strive to provide accurate and up-to-date information, details may be incomplete, outdated, or subject to change without notice.
Information is provided for personal, non-commercial use only and may not reflect all real estate activity in the market. Certain listings may be excluded in accordance with MLS rules. Buyers are encouraged to independently verify all information.
Explore Every Corner of Austin
Search by city, neighborhood, ZIP code, or school district — with real-time data across the entire market.
Communities
ZIP Codes
School Districts
Can't find what you're looking for?
Tell us what you want and we'll match you with the right property across Central Texas.






