
1300 Snowdrop Dr, Georgetown, TX 78628
Schedule a Tour
Available 7 days a week
About this Home
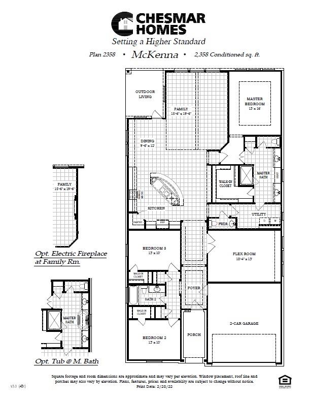
New Construction | 4 Beds | 3.5 Baths | 1-Story | 2,358 Sq Ft | 2-Car Garage | No Rear Neighbors | Ready March | The McKenna is the kind of single-story layout that makes life feel instantly more organized. The entrance foyer leads to two front bedrooms, each with walk-in closets and their own linen closet just outside the room, with a shared full bath conveniently located between them. Across the hall, another secondary bedro...
Listing data provided directly by MLS Grid. Information deemed reliable but not guaranteed.
Updated May 24, 2026Assigned Schools
Ratings from Texas Education Agency (TEA)
Elementary
Middle School
High School
Similar homes in Georgetown
View allData Source & Disclaimer
Property data is sourced from Unlock MLS (ACTRIS) and is updated periodically. While we strive to provide accurate and up-to-date information, details may be incomplete, outdated, or subject to change without notice.
Information is provided for personal, non-commercial use only and may not reflect all real estate activity in the market. Certain listings may be excluded in accordance with MLS rules. Buyers are encouraged to independently verify all information.
Explore Every Corner of Austin
Search by city, neighborhood, ZIP code, or school district — with real-time data across the entire market.
Communities
ZIP Codes
School Districts
Can't find what you're looking for?
Tell us what you want and we'll match you with the right property across Central Texas.







