
226 Wild Honeysuckle Way, San Marcos, TX 78666
Schedule a Tour
Available 7 days a week
About this Home
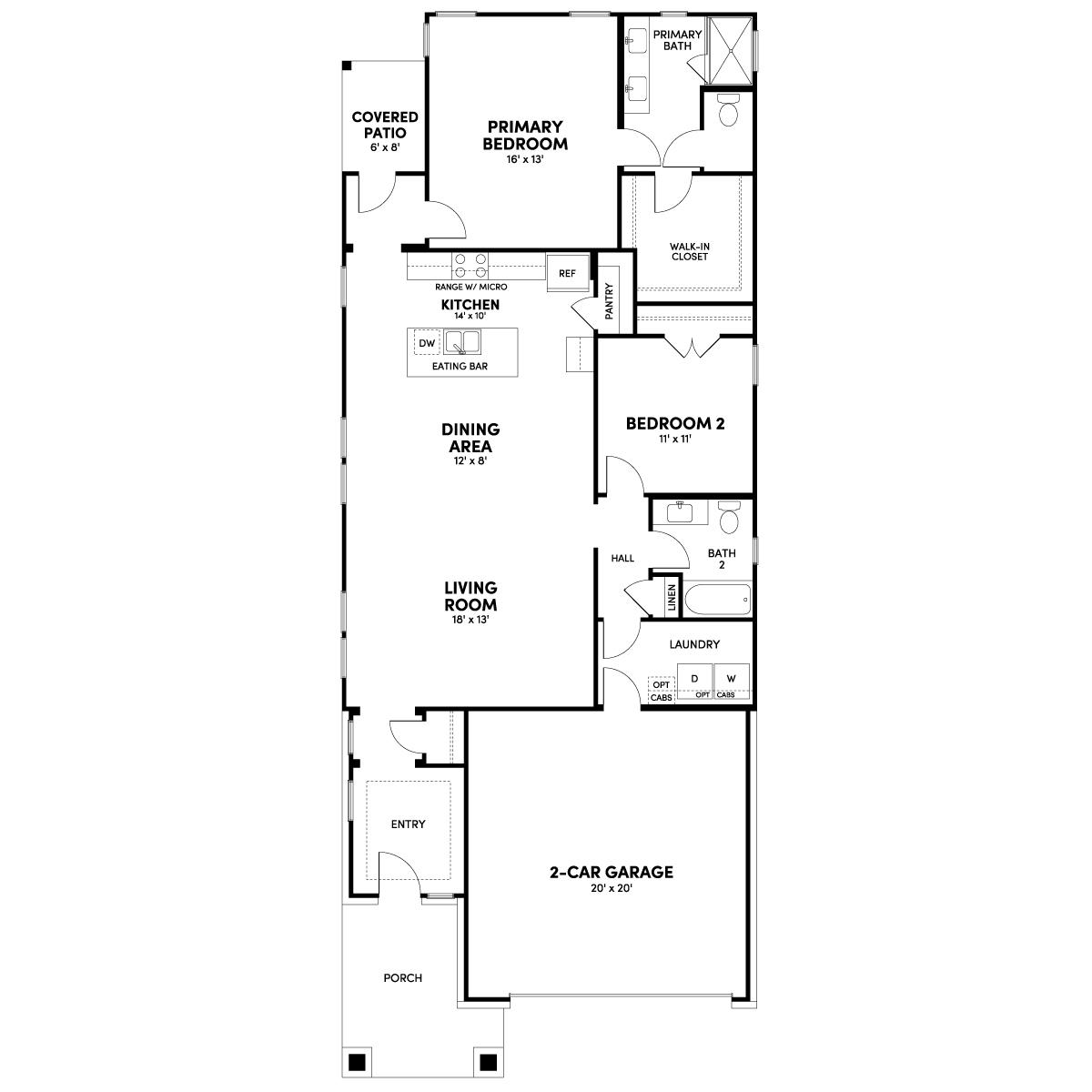
New Newberry plan with upgraded kitchen, quartz countertops, upgraded BLANCO SPRINGS flooring, 8' doors throughout, Express cordless blinds
Listing data provided directly by MLS Grid. Information deemed reliable but not guaranteed.
Updated Oct 15, 2025Assigned Schools
Ratings from Texas Education Agency (TEA)
Elementary
Middle School
High School
Similar homes in San Marcos
View allData Source & Disclaimer
Property data is sourced from Unlock MLS (ACTRIS) and is updated periodically. While we strive to provide accurate and up-to-date information, details may be incomplete, outdated, or subject to change without notice.
Information is provided for personal, non-commercial use only and may not reflect all real estate activity in the market. Certain listings may be excluded in accordance with MLS rules. Buyers are encouraged to independently verify all information.
Explore Every Corner of Austin
Search by city, neighborhood, ZIP code, or school district — with real-time data across the entire market.
Communities
ZIP Codes
School Districts
Can't find what you're looking for?
Tell us what you want and we'll match you with the right property across Central Texas.







