ReadyFront
Real Estate
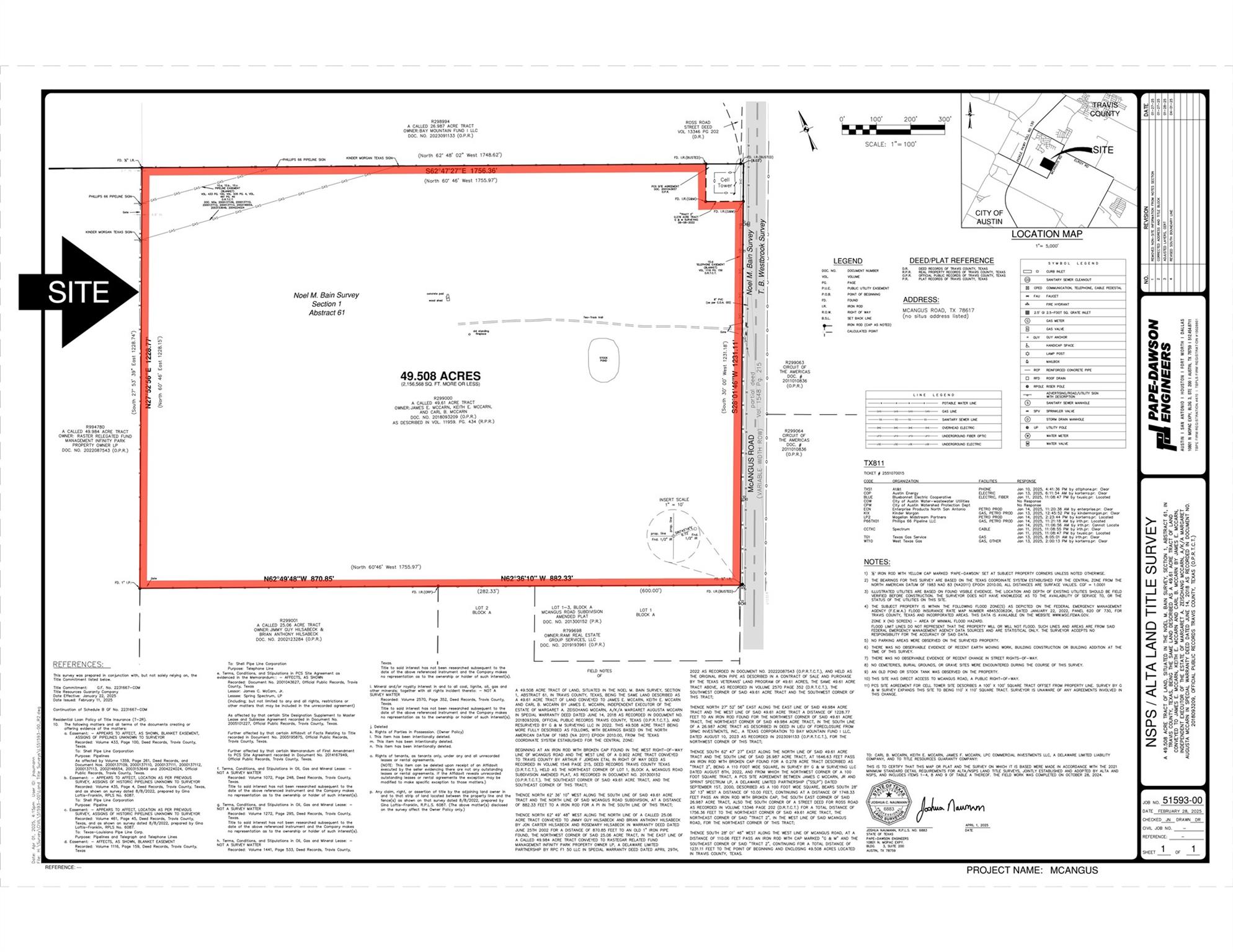
TBD Mc Angus Rd | Ready Front Real Estate | Ready Front Real Estate